Vil med dette, slå ett slag for R615. Dette er en bunker som er bygget utenfor Bergen. I følge ARN (Atlanticwall Researchgroup Norway) er dette den eneste i hele Atlanterhavsvollen. Strukturelt er den inntakt og komplett og burde bevares i følge ARN noe jeg kan støtte. Iht deres dokument ble bunkeren bygget for to artilleri batterier i dette området. Er det noen som har mer informasjon om disse,
Jeg har brukt forskjellige tegninger og de få bildene jeg fant til å konstruere modellen. Disse tegningene inneholder ikke nødutgang, men bilder viser tydelig denne så den er inkludert. Dette er en liten bunker men inneholder alle detaljer man også finner i større regelbau bunkere. Eneste svakhet er muligens at kun en panserplate 7P7 beskyttet observatøren. Denne panserplaten er normalt brukt vertikalt i MG bunkere og da med en ekstra panserplate (726P3 Vorsatzplatte). Dette ga 10cm ekstra pansring totalt 20cm. Mulig at dette var en av grunnene til at det ikke ble bygget flere.
For spesielt interesserte inneholder modellen følgende standard bunker deler:
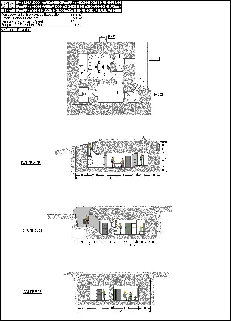
590 kubikk meter betong, 30 tonn armeringsjern, 3,6 tonn stålprofiler
3 x Stahltür 434P01 - Standard todelt 30mm panserdør
2 x Gasschutztür 19P7 - Standard 25mm gasstett ståldør
1 x Gasschutztür 410P9 - Standard dør for nødutgang
1 x Gittertür für Zugänge, 491P2 - Gitter dør for inngang
1 x Schwere Stahlschartenplatte für MG 7P7 - Plate som dekker observatør. 100mm tykk 340x270cm 7,5tonn
2 x Leichte Stahlschartenplatte für MG 483P2 - MG skyteskår 30mm. Normalt brukes 48P8 her.
1 x 735P3 Stahlführungsrohr 735P3 - Rør for bunkerperiskop
Andre detaljer
Senrohr SR-9 - Bunker periskop
Sehrohrgestell 655 S3 - Stativ til bunkerperiskop
HES 1.2 - Gassrensingsanlegg, manuell
Festungfernsprecher 38 - Bunker telefon
Scherenfernrohr SR-14 - Eseløre observasjons og peilekikkert
Wt80K bunkerkachel mit kochplatte - Ovn med kokeplate
For de som vil lese mer er her en link til ARN’s pdf om bunkeren.
http://www.atlantikwall-norwegen.de/R61 ... -Asane.pdf
Bunkeren lastes opp før helgen.
Regelbau 615 Artillerie Beobachtungsstand – Bergen Åsane
Moderators: Stutzpunkt, KOS
- Attachments
-
- Plantegning
- 61510.jpg (117.21 KiB) Viewed 3064 times
-
- Komplett modell
- R615-01.jpg (209.42 KiB) Viewed 3064 times
-
- Panserplate med eseløre kikkert
- R615-02.jpg (136.12 KiB) Viewed 3064 times
-
- Skyteskår for MG 483P3 og bunkerperiskop SR-9
- R615-03.jpg (127.6 KiB) Viewed 3064 times
-
- Oberservasjonrom. Ikke spesielt god plass.
- R615-04.jpg (153.32 KiB) Viewed 3064 times
-
- Modell rett ovenfra uten tak og vegger
- R615-05.jpg (102.04 KiB) Viewed 3064 times
-
- Detalj av bunkerperiskop SR-9 med rør 735P3 som kan lukkes innenfra
- R615-06.jpg (102.49 KiB) Viewed 3064 times
Da er modellen lastet opp. Har imidlertid endret litt på noen komponenter for å holde 10mb grensen. Har imidlertid fått med siste superdetaljerte HES 1.2 fra Scolty.
- Attachments
-
- R615-07.jpg (155.73 KiB) Viewed 3017 times
Flott tegning 
Bunkeren var ett helvete fotografere, trangt da den var fylt opp med boss.
Da jeg postet bilder av bunkeren på AHF i 2004 ante jeg ikkke hvilken bunker det var, og heller ikke at den var så spes. Men den ble kjapt identifisert som en R615.
Legger ved noen bilder som viser ståa den gang.
mvh
Paul S.

Bunkeren var ett helvete fotografere, trangt da den var fylt opp med boss.
Da jeg postet bilder av bunkeren på AHF i 2004 ante jeg ikkke hvilken bunker det var, og heller ikke at den var så spes. Men den ble kjapt identifisert som en R615.
Legger ved noen bilder som viser ståa den gang.
mvh
Paul S.
- Attachments
-
- DSCN2720.jpg (502.67 KiB) Viewed 2975 times
-
- DSCN2723.jpg (481.22 KiB) Viewed 2975 times
-
- DSCN2731.jpg (563.9 KiB) Viewed 2975 times
-
- DSCN2738.jpg (421.14 KiB) Viewed 2975 times
Takk for bilder, ser ut til å ha vært litt av en klatretur for å få tatt bildene.
Bare å gå til http://norgeibilder.no/ og fore inn de tallene, der.andrness wrote:hmmm..og for oss som bare snakker norsk blir det?
--
Tommy
Tommy
Mine foreldre bodde et par hus bortenfor hagen/utmarken hvor R615 befinner seg. Jeg regelrett snublet over denne bunkeren en gang jeg lette etter bikkja som hadde stukket avgårde.
I området rundt R615 kjenner jeg ellers til et par andre installasjoner:
På toppen av Storåsen (UTM 32 N6708910 E298343) er det tydelige spor etter det jeg antar er et artillerifundament. I umiddelbar nærhet er det flere løpegraver og nærforsvarstililnger (nokså raserte men fortsatt synlige). Disse ligger i retning syd-øst fra toppen.
Ca 60-70 meter i luftlinje fra toppen (UTM 32 N6708873 E298388) er det en bunker som nå er dekket fullstendig med jord og kvist. (vel, iløpet av de per siste årene dukket faktisk det ene hjørne fram under kvistene igjen..) Denne bunkeren var jeg inne i som barn for ca 25 år siden, og det jeg kan huske fra dengang er at den hadde to inngangsdører og ellers framsto som skummel.
Med utgangspunkt i at bunkerens godt skjulte og tilbaketrukne beliggenhet (og tilgangen med bil; veien som idag går opp til Storåsen barneskole eksisterte også under krigen) har jeg alltid tenkt at dette må ha vært kommandoplassen for hele stillingen/sektoren.
I området rundt R615 kjenner jeg ellers til et par andre installasjoner:
På toppen av Storåsen (UTM 32 N6708910 E298343) er det tydelige spor etter det jeg antar er et artillerifundament. I umiddelbar nærhet er det flere løpegraver og nærforsvarstililnger (nokså raserte men fortsatt synlige). Disse ligger i retning syd-øst fra toppen.
Ca 60-70 meter i luftlinje fra toppen (UTM 32 N6708873 E298388) er det en bunker som nå er dekket fullstendig med jord og kvist. (vel, iløpet av de per siste årene dukket faktisk det ene hjørne fram under kvistene igjen..) Denne bunkeren var jeg inne i som barn for ca 25 år siden, og det jeg kan huske fra dengang er at den hadde to inngangsdører og ellers framsto som skummel.
Med utgangspunkt i at bunkerens godt skjulte og tilbaketrukne beliggenhet (og tilgangen med bil; veien som idag går opp til Storåsen barneskole eksisterte også under krigen) har jeg alltid tenkt at dette må ha vært kommandoplassen for hele stillingen/sektoren.
Velkommen til forumet.
Den bunkeren høres spennende ut. De fleste bunkere i regelbau serien har 2 innganger og 2 meter vegg og taktykkelse. Kanskje enda en unik bunker i Norge? Noen ide om hvilken type det kan ha vært?
Det er muligens noen andre på forumet som har kjennskap til denne. Jeg har selv ikke vært der.
Den bunkeren høres spennende ut. De fleste bunkere i regelbau serien har 2 innganger og 2 meter vegg og taktykkelse. Kanskje enda en unik bunker i Norge? Noen ide om hvilken type det kan ha vært?
Det er muligens noen andre på forumet som har kjennskap til denne. Jeg har selv ikke vært der.
Mener jeg har lest noe om de andre bunkerne der ute, men finner ikke tilbake til siden nå (vet ikke om det var her inne eller f.eks. på ARN's sider...).AndersHJ wrote:Det er muligens noen andre på forumet som har kjennskap til denne. Jeg har selv ikke vært der.