Regelbau 622 - 3D Modell

Rundt om kystfort og andre større forsvarsanlegg er det masse forskjellige bunkere. Noen er standardiserte mens andre er modifisert til å passe inn i terrenget. fortell om "dine" bunkere!

Moderators: Stutzpunkt, KOS

Post Reply
User avatar
AndersHJ
Posts: 675
Joined: 30 Sep 2009 10:27
Location: Bærum

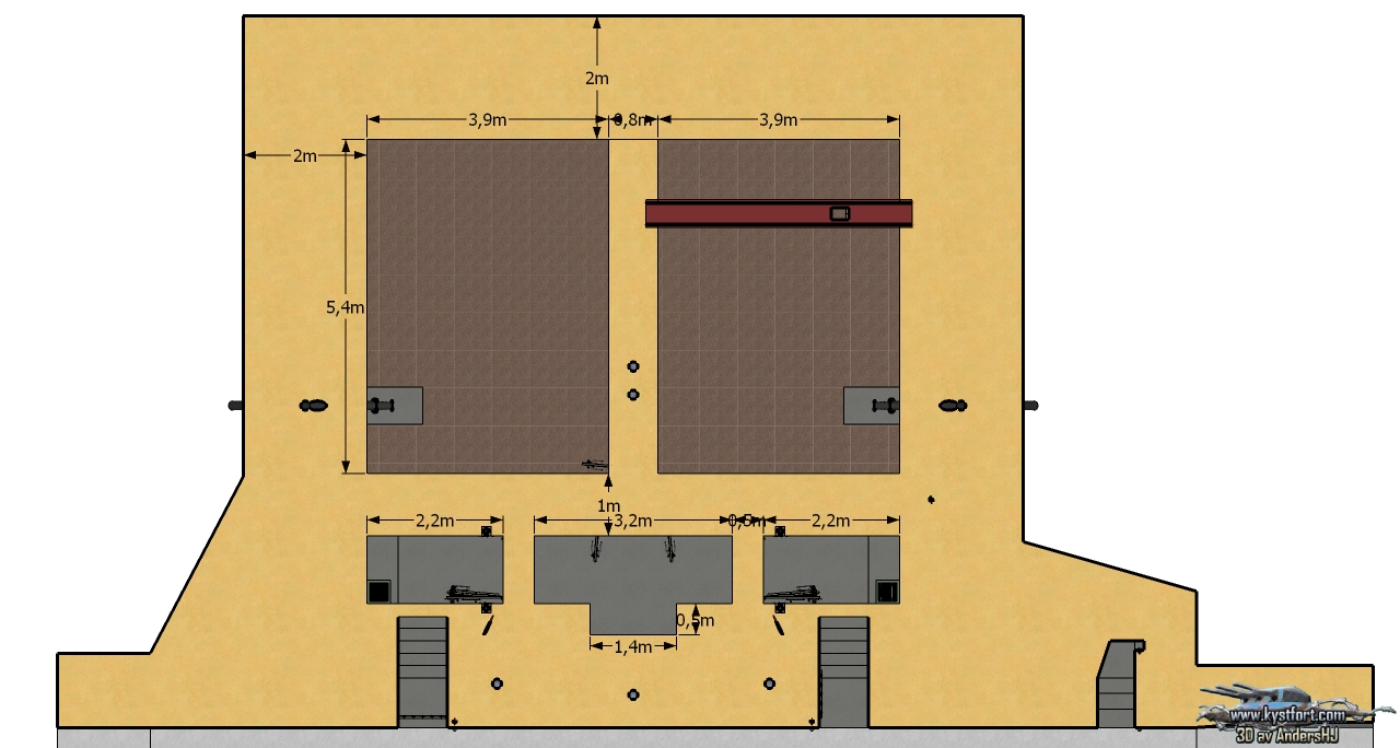
[tr][th]Regelbau[/th]
[th]622[/th][/tr]
[tr][td]Navn[/td]
[td]Ty Gruppenunterstand für 20 mann
Eng Groupshelter for 20 men
Nor Dekningsrom for 20 mann[/td][/tr]
[tr][td]Styrke[/td]
[td]B 2 meter tykkelse[/td][/tr]
[tr][td]Dimensjoner[/td]
[td]12,60 x 11,50 meter, uten støttemurer eller tobruk[/td][/tr]
[tr][td]Betong[/td]
[td]650 kubikk[/td][/tr]
[tr][td]Stål[/td]
[td]Armering 30 tonn
Profil 3,8 tonn[/td][/tr]
[tr][td]Personell[/td]
[td]20 mann[/td][/tr]
[tr][td]Pansrede
elementer og
annet utstyr[/td]
[td]491P2 Gitterport 2 stk
434P01 Panserdør 2 stk
19P7 Gasstett dør 3 stk
48P8 Skyteskår eller 483P2 2 stk
WT80 Ovn eller tilsv 2 stk
HES 1,2 Luftrenser 2 stk
Stahlrost 100 Luftventil inn (2 blinde) 6 stk
LW100 Luftventil ut 2 stk
NW100 Overtrykksventil 4 stk
754P3 Føringsrør for periskop SR9
Ikke på alle 1 stk[/td][/tr]
[tr][td]Forsvargren[/td]
[td]Wermacht, Heer[/td][/tr]
[tr][td]Byggeperiode[/td]
[td]1942-45[/td][/tr]
[tr][td]Norge[/td]
[td]5 * Ørlandet / Airfield, 4 * Ørlandet Inf Stp's, MKB Ørlandet, 2 * Tarva, HKB Kirkelandet, 2 * Stavanger, 2 * HKB Syre, 2 * HKB Marøy, 2 * HKB Gavlen, Lista, MKB Fjell, MKB Løkhaug, MKB Dietl, 3 * HKB Lyngen, MKB Kiberg, MKB Rauøy, Gossen, Kristiansund (SA), 3 * MKB Lyngen, Bardufoss, Florø, 2 * MKB Arnøya, Værnes. Tall fra ARN + Bodø, Florø, Måløy[/td][/tr]
[tr][td]Antall[/td]
[td]40 stk +3[/td][/tr]
[tr][td]Beskrivelse[/td]
[td]Norges mest vanlige regelbau bunker. Bolig bunker for en halv tropp eller to grupper. Enkelte bunkere ble ikke benyttet som kvarter men som kommandoplass eller for samband. De som ble bygget fulgte stort sett standard konstruksjonen. Noen med tobruk på venstre side. Ble benyttet av alle forsvarsgrener. Muligens flere i Norge enn de som er identifisert av ARN. Spesiell takk til JOS på Axis History for tegning av tobruk forsterkning. Ikke alle ser ut til å ha fulgt tegningen fullt ut.[/td][/tr]
[tr][td]Modell[/td]
[td]https://dl.dropboxusercontent.com/u/872 ... %20622.skp[/td][/tr]
[tr][td]Merknad[/td]
[td]Takk til Scolty og Bunker14 for deler. Modellen inneholder animerte detaljer som periskop og dører[/td][/tr]
[tr][td]Oppdatert[/td]
[td]July 2015 Størrelse 30,5 mb[/td][/tr][/table]
Attachments
622-01.jpg
622-01.jpg (602.01 KiB) Viewed 10150 times
622-02.jpg
622-02.jpg (398.87 KiB) Viewed 10150 times
622-03.jpg
622-03.jpg (398.88 KiB) Viewed 10150 times
622-04.jpg
622-04.jpg (652.44 KiB) Viewed 10150 times
622-05.jpg
622-05.jpg (537.72 KiB) Viewed 10150 times
622-06.jpg
622-06.jpg (443.28 KiB) Viewed 10150 times
622-07.jpg
622-07.jpg (389.42 KiB) Viewed 10150 times
Last edited by AndersHJ on 29 Oct 2016 22:00, edited 2 times in total.
Thomas L
Posts: 893
Joined: 26 Sep 2006 18:11
Location: Bodø
Contact:

Flotte tegninger, 1 stk. av denne i Bodø også :)

Thomas L
User avatar
Natter
Posts: 6405
Joined: 25 Feb 2007 18:51
Location: Bergen

Thomas L wrote:Flotte tegninger
+1 :bra:
Thomas L wrote:1 stk. av denne i Bodø også
51 i Norge iht Rudi Rolf.
Informasjon som ikke deles, går tapt!
User avatar
KGJ
Posts: 945
Joined: 10 May 2006 22:43
Location: Florø
Contact:

Stilig! Vi har 1stk i Florø, og så er det 1stk i Måløy.
Flora krigshistorielag
Alex Nord Zorua
Posts: 1
Joined: 27 Jan 2021 22:33
Location: Molde

Hei.
Prøvde å laste ned modellen men fikk 404 feil på dropboxen?
Post Reply

Return to “Regelbau bunkere og andre installasjoner”