HKB 3./978 Syre

Kystfortene var primært rundt Karmøy, Stavanger som var festningsby og Egersund. Ansvarsområdene for kystfortene ble flyttet ofte av tyskerne i dette området.

Moderators: Stutzpunkt, KOS

Gismervik
Posts: 4
Joined: 20 Apr 2015 19:52

Okei...då trenge me ikkje leita så møkje skogen.
Har vert monge gonger på Syreneset så me tenkte oss t Bokn/Loden på neste utfart...kanskje nordøve t sunnhordaland o', vett aldri ka me finne på.
ettori
Posts: 455
Joined: 14 Aug 2012 17:08
Location: Klepp

Bokn er verd turen.
User avatar
Henning Dalsvåg
Posts: 1802
Joined: 29 Mar 2009 14:04
Location: 4272 Sandve,Karmøy

Eg har rydda litt stein rundt om på fortet .
CIMG9526.JPG
CIMG9526.JPG (266.85 KiB) Viewed 8145 times
CIMG9529.JPG
CIMG9529.JPG (269.2 KiB) Viewed 8145 times
CIMG9553.JPG
CIMG9553.JPG (353.28 KiB) Viewed 8145 times
Før
Før
CIMG9558.JPG (311.59 KiB) Viewed 8145 times
Nå
CIMG9560.JPG (296.87 KiB) Viewed 8145 times
Mvh Henning Dalsvåg
User avatar
KOS
Moderator
Posts: 3016
Joined: 16 May 2007 15:31

Henning Dalsvåg wrote:Eg har rydda litt stein rundt om på fortet .
Bra jobba Henning !

mvh
KOS
 Hold Haugalandet ryddig - post i rett tråd
 X-X-X-X-X-X-X-X-X-X-X-X-X-X-X-X-X-X-X-X-X
Retningslinjer for takt og tone på forumet :bra:
slaur3n
Posts: 3
Joined: 17 Feb 2016 2:15

Hei!
Noen som har blueprints/tegninger over de forskjellige bunkersene i Syreneset, eller samme type? Har av kommando bunkeren.
Attachments
actual blueprint.png
actual blueprint.png (209.12 KiB) Viewed 8084 times
User avatar
Henning Dalsvåg
Posts: 1802
Joined: 29 Mar 2009 14:04
Location: 4272 Sandve,Karmøy

Hei, og Velkommen til TKiN forum . Spør AndersHJ her på forumet .
Han har god peiling på bunkerstyper.
Mvh Henning Dalsvåg
User avatar
Natter
Posts: 6405
Joined: 25 Feb 2007 18:51
Location: Bergen

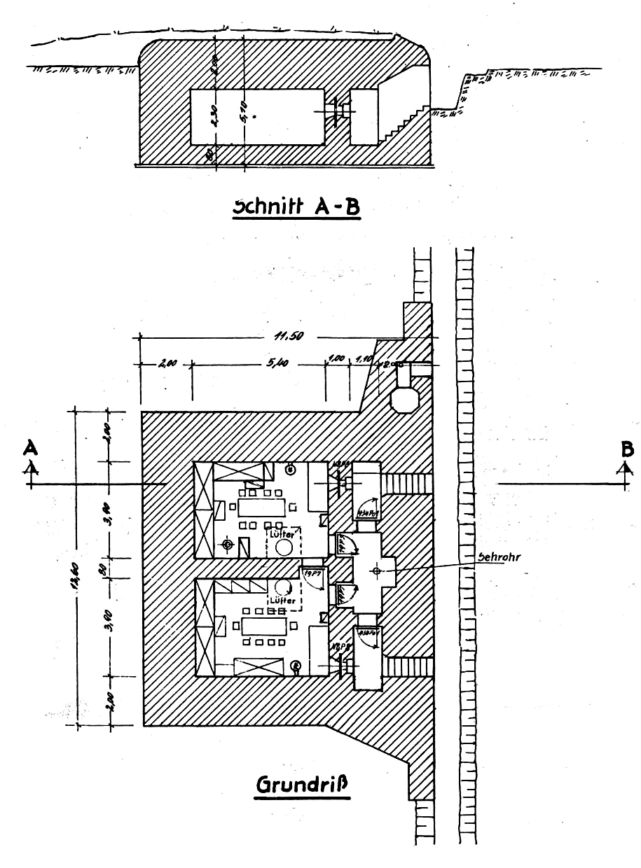
Følgende regelbau fantes på Syre:
1 x R607
2 x R622
1 x R636 (kommandobunkeren)
4 x R655
+ noen enklere Vf-bunkere

Forklaring av "regelbau" og standardtegningene finner du lett ved å søke på nettet (bla her på forumet), og i en rekke bøker (feks Rudi Rolfs typologi).
Tror de fleste av de nevnte typene (i alle fall 622 og 636) har egne tråder her inne også.
Informasjon som ikke deles, går tapt!
User avatar
Natter
Posts: 6405
Joined: 25 Feb 2007 18:51
Location: Bergen

Eksempel på tegninger:
R607
R622
R636
R655
Informasjon som ikke deles, går tapt!
slaur3n
Posts: 3
Joined: 17 Feb 2016 2:15

Takk for bra svar! :)
User avatar
KOS
Moderator
Posts: 3016
Joined: 16 May 2007 15:31

Natter wrote:Eksempel på tegninger
Og bunkeroppbygging vist i 3D-modell er heller ikke å forakte. Mange prinsipper og standardiseringer går igjen
i de forskjellige standardiserte bunkere (regelbau). Her er en annen flott Karmøybunker å studere.
AndersHJ har også mange andre fine modeller, så last ned SketchUp + modeller og utforsk :sjef:

KOS
 Hold Haugalandet ryddig - post i rett tråd
 X-X-X-X-X-X-X-X-X-X-X-X-X-X-X-X-X-X-X-X-X
Retningslinjer for takt og tone på forumet :bra:
slaur3n
Posts: 3
Joined: 17 Feb 2016 2:15

Rått :) Driver med et "lite" spillprosjekt hvor jeg har planer om å gjenskape Syreneset fort og hvordan det så ut under krigen.
User avatar
Henning Dalsvåg
Posts: 1802
Joined: 29 Mar 2009 14:04
Location: 4272 Sandve,Karmøy

slaur3n wrote:Rått :) Driver med et "lite" spillprosjekt hvor jeg har planer om å gjenskape Syreneset fort og hvordan det så ut under krigen.
:m16:
Mvh Henning Dalsvåg
User avatar
Henning Dalsvåg
Posts: 1802
Joined: 29 Mar 2009 14:04
Location: 4272 Sandve,Karmøy

HKB Syre blir med i filminnspilling den 29 mai . Legger ved en link til HaugalandNytt's artikkel om saken
https://hnytt.no/2016/04/10/trenger-krigsfanger-dag/
Mvh Henning Dalsvåg
User avatar
Henning Dalsvåg
Posts: 1802
Joined: 29 Mar 2009 14:04
Location: 4272 Sandve,Karmøy

Var en tur på fortet og fikset litt rundt vaktbunkeren i dag .
Greinene hang over løpegraven ,så eg saget dem vekk.
Greinene hang over løpegraven ,så eg saget dem vekk.
greiner.jpg (259.58 KiB) Viewed 8193 times
Fikk på plass ny kammo i skyteskåret . Reparerte også den ene ammonisjen
Fikk på plass ny kammo i skyteskåret . Reparerte også den ene ammonisjen
vaktbunker syre.jpg (295.75 KiB) Viewed 8193 times
Mvh Henning Dalsvåg
User avatar
KOS
Moderator
Posts: 3016
Joined: 16 May 2007 15:31

Bra jobb Henning! :bra:
 Hold Haugalandet ryddig - post i rett tråd
 X-X-X-X-X-X-X-X-X-X-X-X-X-X-X-X-X-X-X-X-X
Retningslinjer for takt og tone på forumet :bra:
Post Reply

Return to “ROGALAND”